Планировка модульного дома 67 м²: разбор дома «Есенин-2» с двумя спальнями
Одной из самых популярных планировок модульных домов является формат 60–70 м².
Такой дом подходит для семьи из 3–4 человек и позволяет разместить всё необходимое:
Разберём реальный пример — модульный дом «Есенин-2» площадью 67 м².
Подробнее о технологии модульных домов можно прочитать в статье
модульные дома под ключ: полный гид 2026.
Размеры дома
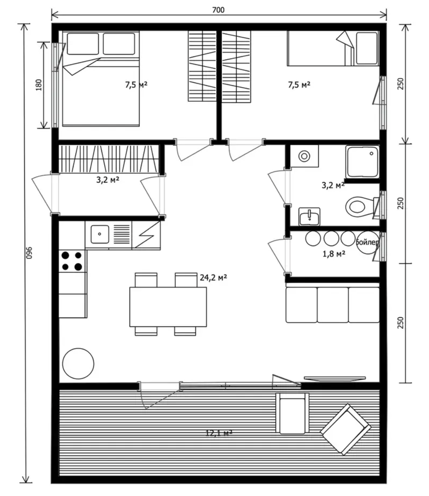
Размер дома:
9,6 × 7 метров
Общая площадь:
67 м²
Дом состоит из двух модулей, которые соединяются на участке.
Такой формат позволяет быстро собрать дом и при этом сохранить просторную планировку.
Кухня-гостиная — сердце дома
Главное пространство дома — кухня-гостиная.
Площадь:
примерно 20–25 м²
Здесь размещаются:
Такая планировка создаёт ощущение большого пространства даже в компактном доме.
Одной из самых популярных планировок модульных домов является формат 60–70 м².
Такой дом подходит для семьи из 3–4 человек и позволяет разместить всё необходимое:
- кухню-гостиную
- две спальни
- санузел
- прихожую
- техническое помещение
Разберём реальный пример — модульный дом «Есенин-2» площадью 67 м².
Подробнее о технологии модульных домов можно прочитать в статье
модульные дома под ключ: полный гид 2026.
Размеры дома
Размер дома:
9,6 × 7 метров
Общая площадь:
67 м²
Дом состоит из двух модулей, которые соединяются на участке.
Такой формат позволяет быстро собрать дом и при этом сохранить просторную планировку.
Кухня-гостиная — сердце дома
Главное пространство дома — кухня-гостиная.
Площадь:
примерно 20–25 м²
Здесь размещаются:
- кухонный гарнитур
- обеденный стол
- диван
- телевизор
- панорамные окна
Такая планировка создаёт ощущение большого пространства даже в компактном доме.
Спальня родителей
Первая спальня обычно занимает:
10–12 м²
В комнате размещаются:
Этого достаточно для комфортной спальни.
Детская или кабинет
Вторая спальня:
8–10 м²
Её можно использовать как:
Санузел
Площадь санузла:
4–5 м²
В нём размещаются:
Почему важно техническое помещение
Одна из важных особенностей современных модульных домов — техническое помещение.
В нём размещаются:
Это делает дом удобным для обслуживания.
Подробнее можно прочитать в статье
вода из скважины в частном доме: почему нужно техническое помещение.
Высокие потолки — ощущение пространства
В доме используется высота потолков:
2,7 метра
Это значительно больше, чем во многих модульных домах.
Высокие потолки делают интерьер:
Почему используется металлический каркас
Основа дома — металлический каркас из швеллера, дополненный сухим брусом.
Такая конструкция позволяет:
Подробнее об этом можно прочитать в статье
пирог стены модульного дома.
Комбинированное утепление
В доме используется двойное утепление:
Это позволяет снизить теплопотери и сделать дом тёплым даже в холодных регионах.
Подробнее можно прочитать в статье
будет ли холодно зимой в модульном доме.
Вывод
Дом площадью 67 м² — один из самых удобных форматов для постоянного проживания.
При грамотной планировке можно разместить:
И при этом дом остаётся компактным и экономичным.
Первая спальня обычно занимает:
10–12 м²
В комнате размещаются:
- двуспальная кровать
- шкаф
- прикроватные тумбы
Этого достаточно для комфортной спальни.
Детская или кабинет
Вторая спальня:
8–10 м²
Её можно использовать как:
- детскую комнату
- кабинет
- гостевую спальню.
Санузел
Площадь санузла:
4–5 м²
В нём размещаются:
- душевая кабина
- унитаз
- раковина
- стиральная машина.
Почему важно техническое помещение
Одна из важных особенностей современных модульных домов — техническое помещение.
В нём размещаются:
- фильтрация воды
- бойлер
- насосное оборудование
- система отопления
Это делает дом удобным для обслуживания.
Подробнее можно прочитать в статье
вода из скважины в частном доме: почему нужно техническое помещение.
Высокие потолки — ощущение пространства
В доме используется высота потолков:
2,7 метра
Это значительно больше, чем во многих модульных домах.
Высокие потолки делают интерьер:
- светлым
- просторным
- более комфортным.
Почему используется металлический каркас
Основа дома — металлический каркас из швеллера, дополненный сухим брусом.
Такая конструкция позволяет:
- перевозить длинные модули
- повысить жёсткость дома
- избежать перекосов конструкции.
Подробнее об этом можно прочитать в статье
пирог стены модульного дома.
Комбинированное утепление
В доме используется двойное утепление:
- 50 мм ЭППС
- 100 мм базальтовая плита
Это позволяет снизить теплопотери и сделать дом тёплым даже в холодных регионах.
Подробнее можно прочитать в статье
будет ли холодно зимой в модульном доме.
Вывод
Дом площадью 67 м² — один из самых удобных форматов для постоянного проживания.
При грамотной планировке можно разместить:
- кухню-гостиную
- две спальни
- санузел
- техническое помещение.
И при этом дом остаётся компактным и экономичным.